住宅会社

128

件

施工事例

701

件

イベント

157

件

土地・建売

155

件

heart
件
お気に入り

お気に入り

title
工務店・ハウスメーカー 工務店・ハウスメーカーを探す 施工事例 施工事例を見る 住宅イベント 住宅イベントに行く モデルハウス モデルハウスを見る リフォーム・リノベーション リフォーム・リノベーション事例を見る 土地・建売 土地・建売を探す 一括資料請求 一括資料請求
TOPへ戻る
工務店・ハウス
メーカーを探す
施工事例を
見る
住宅イベントに
行く
モデルハウスを
見る
リノベーション・
リフォーム事例を見る
土地・建売を
探す
  1. イエタッタ岩手
  2. 住宅イベント
  3. 株式会社 小田島工務店
  4. 【盛岡市】GX志向型モデルハウス【向中野】

株式会社 小田島工務店

【盛岡市】GX志向型モデルハウス【向中野】

ring

岩手県盛岡市

予約限定特典つき
予約必要です
キッズスペースあり

当物件は2026年4月で売約となります。
そのため今回のイベントは見学のみとお客様とさせていただきます。
今月までは建てたおうちを見ながら 新築、建売、土地、リフォーム、外構など様々なご相談できます。

未来を見据えた超省エネ仕様のGX志向型モデルハウスを見学してみてください。

~建物の仕様~
・断熱等級6(7段階中)
・一次エネルギー消費量等級6(6段階中)
・気密性C値は0.3cm2/m2(1.0以下高気密、0.5以下超高気密)

※アンケートをご記入いただかなくても内覧はできます。

Main Image
⟨
⟩
1/8

【盛岡市】GX志向型モデルハウス【向中野】

当物件は2026年4月で売約となります。
そのため今回のイベントは見学のみとお客様とさせていただきます。
今月までは建てたおうちを見ながら 新築、建売、土地、リフォーム、外構など様々なご相談できます。

未来を見据えた超省エネ仕様のGX志向型モデルハウスを見学してみてください。

~建物の仕様~
・断熱等級6(7段階中)
・一次エネルギー消費量等級6(6段階中)
・気密性C値は0.3cm2/m2(1.0以下高気密、0.5以下超高気密)

※アンケートをご記入いただかなくても内覧はできます。

イベント情報

期間

2026/04/03 〜 2026/04/19

時間

10:00〜17:00

場所

岩手県盛岡市向中野103-16

駐車場

有

注意事項

詳しい場所はご予約いただいたお客様にお知らせ致します。

2025.

8

月

見学時間を選んでください

来場・予約特典
vrb

コーヒーショップカード 2000円分プレゼント

アンケートすべての項目をお答えいただいたお客様※1家族様1枚に限ります

こんな方にオススメ!
checkbox

電気代を節約したい!

太陽光パネル6.8kw搭載、2×6W断熱、GX志向型仕様住宅なので電気代や冷暖房費を節約できる超省エネ住宅の参考となるモデルハウスです。こちらの建物を参考におうちの計画はじめてみませんか。

checkbox

新築・建て替えを検討中

実際に弊社が建てたおうちを見て説明を受けることができます。壁の躯体模型も展示してますのでまずは具体的なお話ではなく見学からでもお待ちしております。

checkbox

モデルハウスの購入を検討中

外構、家具、カーテン付で4,850万円で販売しております。

checkbox

リフォームを検討中

内装(水廻り、建具、床、壁、天井等)、外装(屋根、外壁等)、外構(物置、フェンス、カーポート、おうち廻りのアプローチ等)多くのリフォーム工事の実績がございます。お気軽にご相談ください。

電話で
問い合わせる
イベント詳細情報

リビング・ダイニング

タタミコーナー

寝室

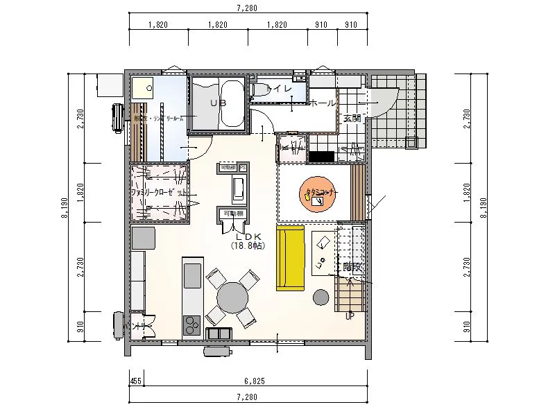
1階間取図

2階間取図

イベント情報

期間

2026/04/03 〜 2026/04/19

時間

10:00〜17:00

場所

岩手県盛岡市向中野103-16

駐車場

有

注意事項

詳しい場所はご予約いただいたお客様にお知らせ致します。

電話で
問い合わせる
来場・予約特典
vrb

コーヒーショップカード 2000円分プレゼント

アンケートすべての項目をお答えいただいたお客様※1家族様1枚に限ります

イベントMAP

地図アプリで見る
  • 会社情報
  • イベント3件
  • 施工事例12件
  • 土地・建売1件
  • ブログ49件
  • 公式サイト

閲覧履歴

arrow
  • 価格は物件の代金総額を表示しており、消費税が課税される場合は税込み価格です。 (1000円未満は切り上げ。)
  • 写真に写っている、またはパース(絵)や間取り図に描かれている家具や車などは、特にコメントがない場合、販売価格に含まれません。
  • 敷地権利が定期借地権のものは価格に権利金を含みます。
  • 建築条件付き土地価格には、建物価格は含まれません。
  • 物件情報は、原則として情報提供日の2日前に最終確認した情報です。
  • 完成予想図はいずれも外構、植栽、外観等実際のものとは多少異なることがあります。
  • 建築条件付き土地とは、その土地に建築する建物の建築請負契約が一定期間内に成立することを条件として売買される土地を指します。建築請負契約の成立に向けて、土地購入者と施工会社との間で建物の設計プランを協議するため、購入者が希望する建物の設計に関する十分な交渉期間が設定されます。この交渉期間内に希望を満たすプランが実現できるかどうかを確認し、契約の可否を判断します。なお、この期間はおおむね3ヶ月程度とされています。もし購入者が納得のいくプランを得られず、建築請負契約が成立しなかった場合には、土地売買契約は白紙となり、土地代金や手付金など、契約にかかった費用は名目に関係なく全額返金されます。
  • 建築条件土地の情報内に掲載されている、建物プラン例は、土地購入者の設計プランの参考の一例であって、プランの採用可否は任意です。
logo
instagram facebook x youtube pinterest pinterest tiktok

工務店・ハウスメーカーを探す

- 施工対応エリアから探す

岩手県全域 | 県央 | 県南 | 沿岸 | 県北 | 盛岡市 | 滝沢市 | 八幡平市 | 岩手郡雫石町 | 岩手郡葛巻町 | 岩手郡岩手町 | 紫波郡紫波町 | 紫波郡矢巾町 | 花巻市 | 北上市 | 遠野市 | 奥州市 | 一関市 | 和賀郡西和賀町 | 胆沢郡金ケ崎町 | 西磐井郡平泉町 | 宮古市 | 大船渡市 | 久慈市 | 陸前高田市 | 釜石市 | 気仙郡住田町 | 上閉伊郡大槌町 | 下閉伊郡山田町 | 下閉伊郡岩泉町 | 下閉伊郡田野畑村 | 二戸市 | 二戸郡一戸町 | 下閉伊郡普代村 | 九戸郡軽米町 | 九戸郡野田村 | 九戸郡九戸村 | 九戸郡洋野町

- 取扱住宅から探す

注文住宅 | 規格住宅 | 建売住宅

施工事例を見る

- カテゴリーから探す

新築 | リフォーム | リノベーション

住宅イベントへ行く

- カテゴリーから探す

完成見学会 | モデルハウス見学会 | イベント | セミナー | オンラインイベント | 相談会 | リフォーム・リノベーション

モデルハウスへ行く

- エリアから探す

岩手県全域 | 県央 | 県南 | 沿岸 | 県北 | 盛岡市 | 滝沢市 | 八幡平市 | 岩手郡雫石町 | 岩手郡葛巻町 | 岩手郡岩手町 | 紫波郡紫波町 | 紫波郡矢巾町 | 花巻市 | 北上市 | 遠野市 | 奥州市 | 一関市 | 和賀郡西和賀町 | 胆沢郡金ケ崎町 | 西磐井郡平泉町 | 宮古市 | 大船渡市 | 久慈市 | 陸前高田市 | 釜石市 | 気仙郡住田町 | 上閉伊郡大槌町 | 下閉伊郡山田町 | 下閉伊郡岩泉町 | 下閉伊郡田野畑村 | 二戸市 | 二戸郡一戸町 | 下閉伊郡普代村 | 九戸郡軽米町 | 九戸郡野田村 | 九戸郡九戸村 | 九戸郡洋野町

- 属性から探す

販売中 | 販売予定 | 常設展示場 | 常時見学可 | 宿泊体験可

土地を探す

- 所在地から探す

岩手県全域 | 県央 | 県南 | 沿岸 | 県北 | 盛岡市 | 滝沢市 | 八幡平市 | 岩手郡雫石町 | 岩手郡葛巻町 | 岩手郡岩手町 | 紫波郡紫波町 | 紫波郡矢巾町 | 花巻市 | 北上市 | 遠野市 | 奥州市 | 一関市 | 和賀郡西和賀町 | 胆沢郡金ケ崎町 | 西磐井郡平泉町 | 宮古市 | 大船渡市 | 久慈市 | 陸前高田市 | 釜石市 | 気仙郡住田町 | 上閉伊郡大槌町 | 下閉伊郡山田町 | 下閉伊郡岩泉町 | 下閉伊郡田野畑村 | 二戸市 | 二戸郡一戸町 | 下閉伊郡普代村 | 九戸郡軽米町 | 九戸郡野田村 | 九戸郡九戸村 | 九戸郡洋野町

建売住宅を探す

- 所在地から探す

岩手県全域 | 県央 | 県南 | 沿岸 | 県北 | 盛岡市 | 滝沢市 | 八幡平市 | 岩手郡雫石町 | 岩手郡葛巻町 | 岩手郡岩手町 | 紫波郡紫波町 | 紫波郡矢巾町 | 花巻市 | 北上市 | 遠野市 | 奥州市 | 一関市 | 和賀郡西和賀町 | 胆沢郡金ケ崎町 | 西磐井郡平泉町 | 宮古市 | 大船渡市 | 久慈市 | 陸前高田市 | 釜石市 | 気仙郡住田町 | 上閉伊郡大槌町 | 下閉伊郡山田町 | 下閉伊郡岩泉町 | 下閉伊郡田野畑村 | 二戸市 | 二戸郡一戸町 | 下閉伊郡普代村 | 九戸郡軽米町 | 九戸郡野田村 | 九戸郡九戸村 | 九戸郡洋野町

工務店・ハウスメーカーを探す >

- 施工対応エリアから探す

岩手県全域 | 県央 | 県南 | 沿岸 | 県北 | 盛岡市 | 滝沢市 | 八幡平市 | 岩手郡雫石町 | 岩手郡葛巻町 | 岩手郡岩手町 | 紫波郡紫波町 | 紫波郡矢巾町 | 花巻市 | 北上市 | 遠野市 | 奥州市 | 一関市 | 和賀郡西和賀町 | 胆沢郡金ケ崎町 | 西磐井郡平泉町 | 宮古市 | 大船渡市 | 久慈市 | 陸前高田市 | 釜石市 | 気仙郡住田町 | 上閉伊郡大槌町 | 下閉伊郡山田町 | 下閉伊郡岩泉町 | 下閉伊郡田野畑村 | 二戸市 | 二戸郡一戸町 | 下閉伊郡普代村 | 九戸郡軽米町 | 九戸郡野田村 | 九戸郡九戸村 | 九戸郡洋野町

- 取扱住宅から探す

注文住宅 | 規格住宅 | 建売住宅

施工事例を見る >

- カテゴリーから探す

新築 | リフォーム | リノベーション

住宅イベントへ行く >

- カテゴリーから探す

完成見学会 | モデルハウス見学会 | イベント | セミナー | オンラインイベント | 相談会 | リフォーム・リノベーション

モデルハウスへ行く >

- エリアから探す

岩手県全域 | 県央 | 県南 | 沿岸 | 県北 | 盛岡市 | 滝沢市 | 八幡平市 | 岩手郡雫石町 | 岩手郡葛巻町 | 岩手郡岩手町 | 紫波郡紫波町 | 紫波郡矢巾町 | 花巻市 | 北上市 | 遠野市 | 奥州市 | 一関市 | 和賀郡西和賀町 | 胆沢郡金ケ崎町 | 西磐井郡平泉町 | 宮古市 | 大船渡市 | 久慈市 | 陸前高田市 | 釜石市 | 気仙郡住田町 | 上閉伊郡大槌町 | 下閉伊郡山田町 | 下閉伊郡岩泉町 | 下閉伊郡田野畑村 | 二戸市 | 二戸郡一戸町 | 下閉伊郡普代村 | 九戸郡軽米町 | 九戸郡野田村 | 九戸郡九戸村 | 九戸郡洋野町

- 属性から探す

販売中 | 販売予定 | 常設展示場 | 常時見学可 | 宿泊体験可

土地を探す >

- 所在地から探す

岩手県全域 | 県央 | 県南 | 沿岸 | 県北 | 盛岡市 | 滝沢市 | 八幡平市 | 岩手郡雫石町 | 岩手郡葛巻町 | 岩手郡岩手町 | 紫波郡紫波町 | 紫波郡矢巾町 | 花巻市 | 北上市 | 遠野市 | 奥州市 | 一関市 | 和賀郡西和賀町 | 胆沢郡金ケ崎町 | 西磐井郡平泉町 | 宮古市 | 大船渡市 | 久慈市 | 陸前高田市 | 釜石市 | 気仙郡住田町 | 上閉伊郡大槌町 | 下閉伊郡山田町 | 下閉伊郡岩泉町 | 下閉伊郡田野畑村 | 二戸市 | 二戸郡一戸町 | 下閉伊郡普代村 | 九戸郡軽米町 | 九戸郡野田村 | 九戸郡九戸村 | 九戸郡洋野町

建売住宅を探す >

- 所在地から探す

岩手県全域 | 県央 | 県南 | 沿岸 | 県北 | 盛岡市 | 滝沢市 | 八幡平市 | 岩手郡雫石町 | 岩手郡葛巻町 | 岩手郡岩手町 | 紫波郡紫波町 | 紫波郡矢巾町 | 花巻市 | 北上市 | 遠野市 | 奥州市 | 一関市 | 和賀郡西和賀町 | 胆沢郡金ケ崎町 | 西磐井郡平泉町 | 宮古市 | 大船渡市 | 久慈市 | 陸前高田市 | 釜石市 | 気仙郡住田町 | 上閉伊郡大槌町 | 下閉伊郡山田町 | 下閉伊郡岩泉町 | 下閉伊郡田野畑村 | 二戸市 | 二戸郡一戸町 | 下閉伊郡普代村 | 九戸郡軽米町 | 九戸郡野田村 | 九戸郡九戸村 | 九戸郡洋野町

一括資料請求

一括資料請求

登録会社一覧

サイトマップ

利用規約

プライバシーポリシー

お問い合わせ

運営会社

ご掲載を希望される方へ

宮城県版

guideMap_i

山形県版

guideMap_i

福島県版

guideMap_i

茨城県版

guideMap_i

富山県版

guideMap_i

石川県版

guideMap_i

関西版

guideMap_i

愛媛県版

guideMap_i

鹿児島県版

guideMap_i

岩手県の工務店 ハウスメーカー 情報サイト © IETATTA

サイトマップ

利用規約

プライバシーポリシー

お問合せ

運営会社

ご掲載を希望される方へ

登録会社一覧

イエタッタ岩手 > 住宅イベント > 株式会社 小田島工務店 > 【盛岡市】GX志向型モデルハウス【向中野】