北洲リノベーション

【性能向上リノベ戸建て】矢巾町大字高田_2階建 3LDK 【2025年1月実施】

販売中
即引渡し可
閑静な住宅街
1/8

展示場仕様で、弊社の強みをふんだんに施工に反映しています
・断熱気密施工と耐震改修で住宅性能を向上させています。
・性能向上リノベーションで暖かな住まいに!

point!
駐車場2台、南向き、高断熱住宅、耐震改修、外壁サイディング、樹脂デッキあり
オール電化、ユニットバス1坪、バリアフリー、ランドリースペース
Ⅱ型対面キッチン、ウォークスルークローゼット
エアコン2台、エコキュート、樹脂サッシ/Low-Eペア・アルゴンガス入り

物件情報

情報更新日

2025年12月01日 19:11

販売価格

3200万円

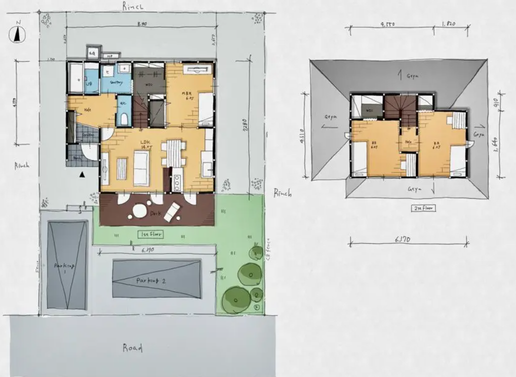
間取り

3LDK

土地面積

193.51 m² [58.54坪]

建物面積

82.65 m² [25.00坪]

構造

2階建て

住所

岩手県紫波郡矢巾町高田高田13地割

土地の権利形態

所有権

完成時期

1979年3月

間取り

3LDK

所在地MAP

物件情報

所在地

岩手県紫波郡矢巾町高田高田13地割

交通

【バス】岩手県交通 北高田 停歩320m

土地面積

193.51 m² [58.54坪]

建物面積

82.65 m² [25.00坪]

建ぺい率・容積率

40%、80%

間取り

3LDK

建物構造

木造

駐車場

2台

道路付け

南 6.0m 公道

私道負担・道路

無し

負担金

電気

東北電力

上水道

公営水道

下水道

公共下水

ガス

集中プロパン

都市計画

市街化区域

開発面積

用途地域

第一種低層住居専用地域

地目

宅地

土地の権利

所有権

借地権の種類・期間

なし

建築確認番号

-

制限事項

特記事項

販売価格

3200万円

販売区画・戸数

1戸

総区画・戸数

1戸

造成完了時期

【2025年1月実施】 断熱改修リノベーション工事済み

完成時期

1979年3月

引き渡し時期

即時

売主

取引形態

売主

学区情報

備考

【2023年2月実施】
断熱改修リノベーション工事済み

情報更新日

2025/12/01

次回更新予定日

2025/12/15

販売会社情報

社名

北洲リノベーション

ブランド名

所在地

岩手県盛岡市向中野7-15-40

営業時間

10:00〜17:00

定休日

水曜・夏季休業・年末年始

電話番号

019-601-7591

FAX

019-601-7595

HP

https://hokushurenovation.net/

建築許可番号

免許証番号:国土交通大臣(5)第6277号

宅建業免許番号

所属団体名及び公正取引協議会加盟事業者

閲覧履歴

arrow