株式会社パルコホーム

【家具付】矢巾町南矢幅モデルハウス

販売中
即引渡し可
スーパー徒歩10分以内
1/8

注目のサザンタウンやはばagain内モデルハウスが販売スタート!
矢巾町でお探しの方・今年中に入居したいとお考えの方は必見です!
【おすすめポイント】
●Ua値0.28・断熱等級6(G2グレード)
●全館空調「AIR LOOP」搭載で年中快適
●メンテナンスが容易なエコ床暖で足元から暖かい
●徳田小学校まで徒歩24分
●通勤通学に便利!JR矢幅駅まで徒歩15分
●太陽光パネル6.45kw搭載
●外構工事済み(カーポート2台用)
●家具家電つき
●大人気ガス衣類乾燥機「乾太くん」

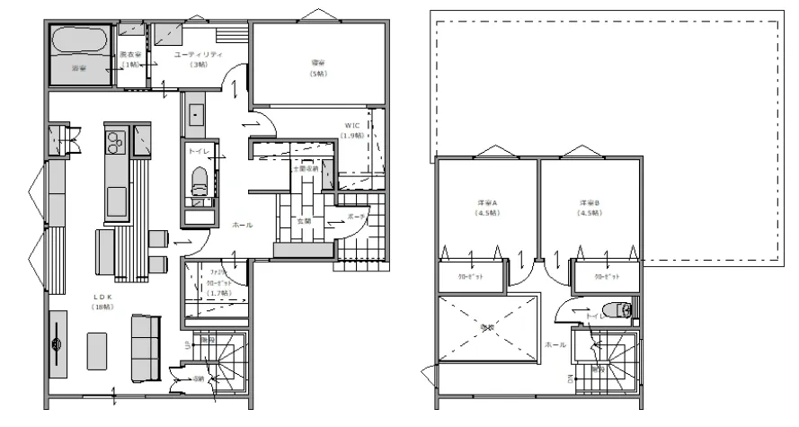
ワンフロアで生活できる
1階完結型のモデルハウスです。
回遊動線も叶えた『シン・ママ楽の家』。
住宅の購入ってどんな流れなの?
小さな疑問もスタッフが丁寧に解消いたします。

物件情報

情報更新日

2026年01月05日 18:44

販売価格

4650万円

間取り

土地面積

214.46 m² [64.87坪]

建物面積

112.62 m² [34.07坪]

構造

平屋

住所

岩手県紫波郡矢巾町南矢幅第9地割87-12

土地の権利形態

完成時期

間取り

所在地MAP

物件情報

所在地

岩手県紫波郡矢巾町南矢幅第9地割87-12

交通

JR東北本線矢幅駅 徒歩15分

土地面積

214.46 m² [64.87坪]

建物面積

112.62 m² [34.07坪]

建ぺい率・容積率

-%、-%

間取り

建物構造

112.62

駐車場

道路付け

-

私道負担・道路

-

負担金

電気

東北電力

上水道

公営

下水道

公共下水

ガス

プロパンガス

都市計画

開発面積

地目

-

土地の権利

借地権の種類・期間

取引条件の有効期限

建築確認番号

第R05-1-2379-0号

制限事項

特記事項

<周辺環境>
●徳田小学校…徒歩24分
●矢巾中学校…徒歩21分
●マックスバリュー矢巾店…徒歩9分
●岩手医科大学付属病院…徒歩23分
●JR東北本線矢幅駅…徒歩15分

販売価格

4650万円

販売区画・戸数

総区画・戸数

造成完了時期

完成時期

引き渡し時期

令和6年12月

売主

取引形態

売買

学区情報

備考

情報更新日

2026/01/05

次回更新予定日

2026/01/19

販売会社情報

社名

株式会社パルコホーム

ブランド名

所在地

岩手県盛岡市北飯岡1-1-82

営業時間

10:00~17:00

定休日

毎週火曜日・毎週水曜日(店舗により異なります)

電話番号

019-631-2865

FAX

019-635-0864

建築許可番号

[建設業許可] 国土交通大臣許可(般-3)第26244号

宅建業免許番号

[宅地建物取引業免許] 国土交通大臣(3)第8844号

所属団体名及び公正取引協議会加盟事業者

青森県宅地建物取引業協会会員
岩手県宅地建物取引業協会会員
宮城県宅地建物取引業協会会員

閲覧履歴

arrow