間取り

3LDK
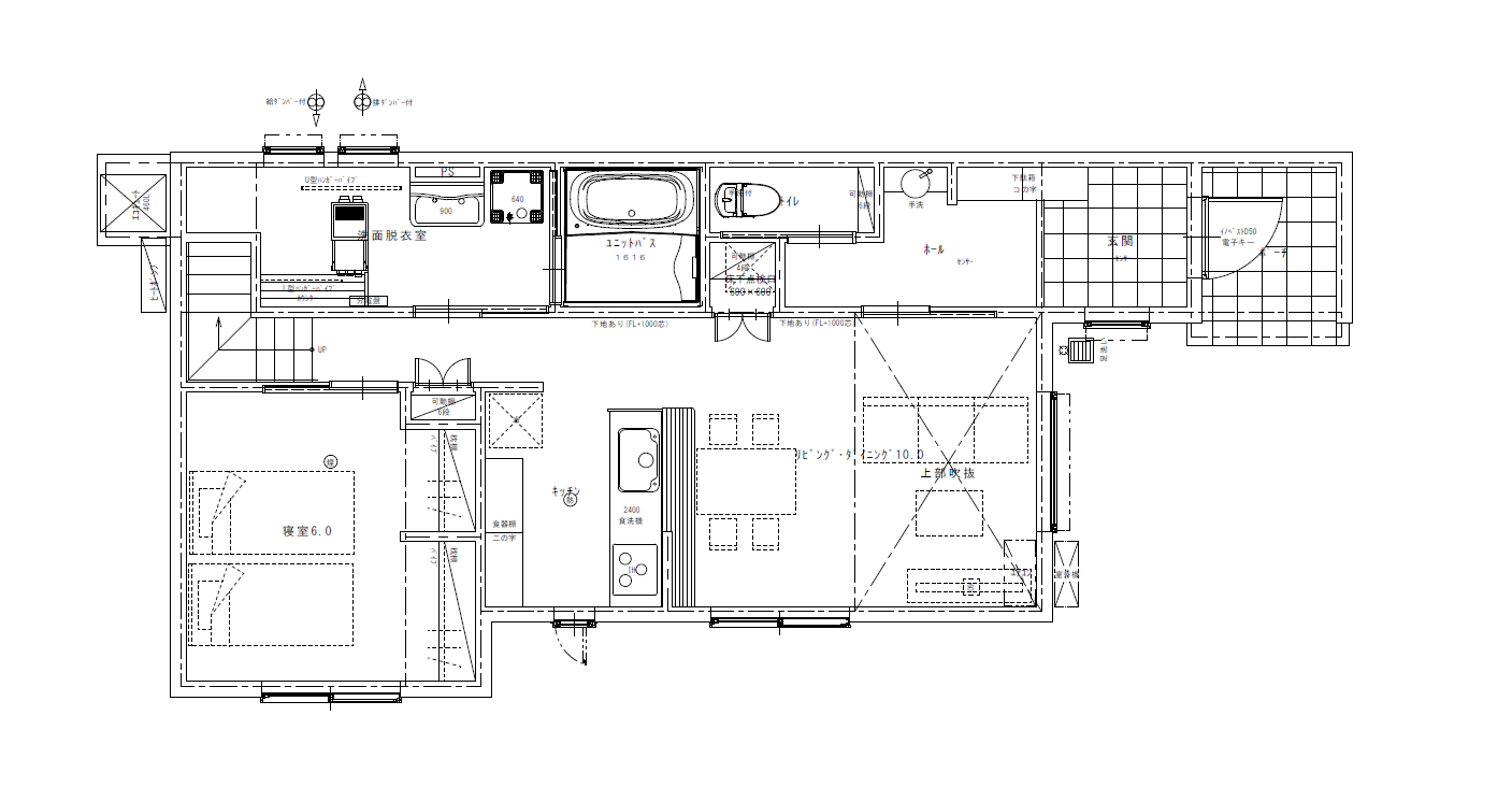
1階間取り図

1階平面図

1階間取り図

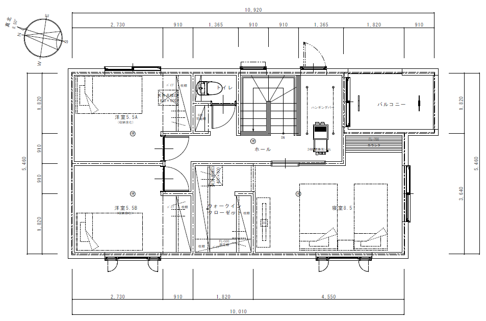
2階平面図

物件情報

施工価格

2,000万円~2,499万円

構造

2階建て

間取り

3LDK

延床面積

100.19㎡

敷地面積

208.00㎡

坪単価

70万円~75万円

工法

2×4、2×6