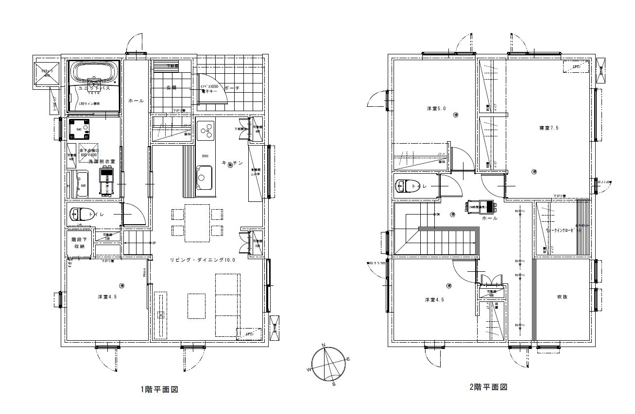
間取り

4LDK
1階間取り図

1,2階平面図

物件情報

施工価格

2,000万円~2,499万円

構造

2階建て

間取り

4LDK

坪単価

70万円~75万円

工法

2×4、2×6