シックな省エネZEH住宅
お気に入りに追加
間取り図あり
株式会社 小田島工務店
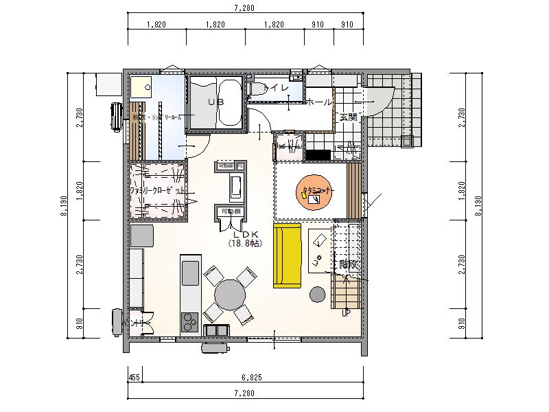
吹抜とオープン階段で明るさと解放感を感じる
施工価格
2,500万円~2,999万円
構造
2階建て
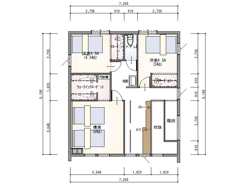
間取り
3SLDK
延床面積
116.57㎡
敷地面積
178.17㎡
坪単価
75万円~80万円
工法
2×4、2×6
施工期間
令和6年8月~令和7年2月
閲覧履歴